Trong những năm gần đây, xu hướng thiết kế nhà ở kết hợp kinh doanh ngày càng được nhiều gia đình lựa chọn, đặc biệt tại các khu phố sầm uất. Mẫu nhà tân cổ điển 5 tầng 4x16m dưới đây là minh chứng hoàn hảo cho sự kết hợp giữa vẻ đẹp sang trọng cổ điển và tính ứng dụng hiện đại, vừa đáp ứng nhu cầu nhà ở, vừa mang lại giá trị kinh doanh hiệu quả.
Việt Nhật Group giới thiệu mẫu thiết kế nhà phố tân cổ điển 1 trệt 4 lầu sân thượng, diện tích 4x16m, xây nhà trọn gói tại phường Hòa Hưng – Tp.HCM (Quận 10 cũ). Nếu bạn cần thông tin chi tiết về quy trình xây nhà phần thô, hoàn thiện nhà ở, và đơn giá xây dựng nhà, liên hệ ngay Việt Nhật Group để nhận báo giá xây nhà trọn gói chính xác.

Mẫu Nhà Tân Cổ Điển 5 Tầng 4x16m – Nhà Ở Kết Hợp Kinh Doanh
Mẫu nhà tân cổ điển 5 tầng – Nét đẹp thanh linh mang hơi thở tân cổ điển
Quan sát từ mặt tiền, công trình gây ấn tượng mạnh bởi tỷ lệ cân đối và đường nét kiến trúc tinh tế. Kiểu dáng tân cổ điển được thể hiện rõ qua các hệ cột trụ tròn, ban công lan can hoa văn sắt mỹ thuật, cùng các chi tiết phào chỉ nhẹ nhàng nhưng vô cùng sang trọng.
Phần mái vòm ở tầng trên cùng là điểm nhấn nổi bật, mang hơi hướng kiến trúc châu Âu cổ điển, giúp tổng thể ngôi nhà trở nên mềm mại, quý phái và khác biệt so với các mẫu nhà phố hiện đại thường thấy.
Tông màu trắng chủ đạo kết hợp với kính cường lực trong suốt và nền trệt ốp đá tối màu tạo nên sự tương phản hài hòa, vừa sang trọng vừa bền vững theo thời gian. Ngoài ra, hệ cửa kính lớn không chỉ tăng tính thẩm mỹ mà còn giúp tận dụng ánh sáng tự nhiên, mở rộng không gian sống bên trong.
Nhìn tổng thể, đây là một công trình xây dựng vừa mang nét quý phái cổ điển, vừa giữ được tính thực dụng của nhà phố hiện đại, phù hợp cho mục đích kinh doanh và sinh hoạt gia đình.

Mẫu nhà tân cổ điển 5 tầng – Nét đẹp thanh linh mang hơi thở tân cổ điển
>>> Tham khảo đơn giá xây dựng nhà tại TPHCM:
Bố trí công năng khoa học – Tối ưu từng mét vuông
Với diện tích 4x16m, ngôi nhà được thiết kế 5 tầng có sân thượng, mỗi tầng đều có công năng hợp lý, phục vụ đầy đủ nhu cầu ở – làm việc – nghỉ ngơi của gia đình nhiều thế hệ.
Tầng trệt – Khu vực kinh doanh và sinh hoạt linh hoạt
Không gian tầng trệt được bố trí khu vực kinh doanh cho thuê ở phía trước, tận dụng lợi thế mặt tiền hướng ra đường lớn. Nhà phố 2 mặt, mặt hậu hướng ra đường nhỏ, KTS thiết kế sân sau, khu vực để xe trong nhà, WC đặt gọn dưới gầm cầu thang, giúp tối ưu diện tích sử dụng. Đây là thiết kế thông minh, đảm bảo sự riêng tư giữa không gian kinh doanh và sinh hoạt gia đình.

Bản vẽ thiết kế mặt bằng bố trí công năng tầng trệt
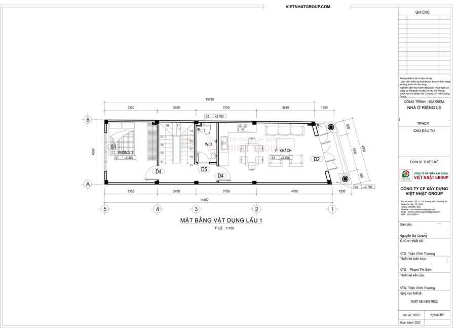
Lầu 1 – Không gian sinh hoạt chung ấm cúng
Mặt bằng lầu 1 được bố trí phòng khách rộng rãi, là nơi tiếp đón khách hoặc sinh hoạt gia đình. Tiếp theo là một phòng ngủ nhỏ, WC sử dụng chung cho nhu cầu sinh hoạt tại lầu 1. Thiết kế phù hợp cho người lớn tuổi hoặc khách ở lại qua đêm. Không gian mở, cửa sổ hướng ra ban công giúp đón sáng và gió tự nhiên.

Bản vẽ thiết kế mặt bằng bố trí công năng lầu 1
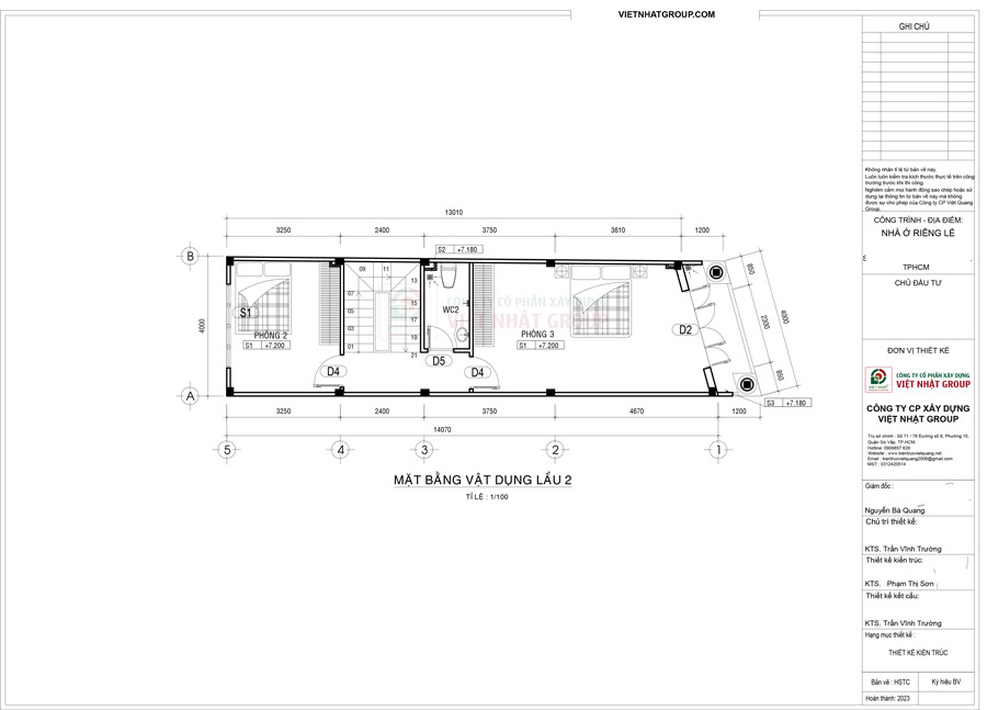
Lầu 2 – Phòng ngủ master sang trọng
Tầng này gồm phòng ngủ master có diện tích rộng và thiết kế tiện nghi. Bên cạnh là một phòng ngủ nhỏ, phù hợp cho con cái hoặc khách. WC sử dụng chung cho hai phòng ngủ, vừa đảm bảo công năng, vừa tối ưu diện tích sinh hoạt của các phòng. Thiết kế các phòng đều được bố trí thông thoáng, đón gió và ánh sáng tối ưu.

Bản vẽ thiết kế mặt bằng bố trí công năng lầu 2
Lầu 3 – Khu vực riêng tư
Không gian lầu 3 được giữ nguyên bố cục của lầu 2, gồm phòng ngủ master, phòng ngủ phụ và WC chung, mang lại sự đồng bộ trong thiết kế. Tầng này có thể linh hoạt sử dụng làm phòng làm việc, phòng học hoặc phòng giải trí tùy theo nhu cầu.

Bản vẽ thiết kế mặt bằng bố trí công năng lầu 3
Lầu 4 – Không gian tâm linh và thư giãn
Trên cùng là phòng thờ được đặt ở vị trí cao nhất – nơi thể hiện sự tôn nghiêm và trang trọng theo phong thủy Á Đông. Phía trước là sân thượng rộng rãi, có thể làm khu vườn nhỏ, trồng cây xanh hoặc bố trí bàn trà thư giãn. Ngoài ra còn có một phòng ngủ phụ, thích hợp cho khách hoặc thành viên trong gia đình muốn có không gian riêng tư.

Bản vẽ thiết kế mặt bằng bố trí công năng lầu 4
Đối với nhà phố tân cổ điển 1 trệt 4 lầu sân thượng 4x16m, xây dựng nhà để cho thuê phòng trọ kết hợp kinh doanh mặt bằng, ngôi nhà có thể bố trí gồm 06 phòng cho thuê để lưu trú và mặt bằng tầng trệt để kinh doanh. Mẫu nhà cung cấp sự lựa chọn đa dạng về nhu cầu sinh hoạt, mức thu nhập khác nhau của khách lưu trú tại Tp.HCM.
Ngoài ra, mẫu nhà phố tân cổ điển 5 tầng 4x16m – nhà ở kết hợp kinh doanh là lựa chọn lý tưởng cho gia đình mong muốn sở hữu không gian sống đẳng cấp, vừa tận dụng tối đa giá trị mặt bằng kinh doanh. Thiết kế hài hòa giữa cổ điển và hiện đại, giữa thẩm mỹ và công năng, giúp ngôi nhà trở thành điểm nhấn nổi bật trong khu phố.
Nếu bạn cần tư vấn chi phí thiết kế – xây nhà trọn gói hoặc tư vấn phương án xây dựng nhà phố tân cổ điển phù hợp với nhu cầu và sở thích cá nhân của mình, liên hệ ngay đến Việt Nhật Group để được hỗ trợ tư vấn, báo giá xây nhà nhanh chóng, tận tâm.
Từ khóa: xay nha | xay nha tron goi | sửa chữa nhà trọn gói | sửa nhà | xây dựng nhà phần thô | giá xây nhà phần thô































































